世界犬业联盟-国际实战犬竞技赛规则官方中文版

规则来源:世界犬业联盟(FCI)官网 赛事执行:CKUWDC工作犬-实战犬赛制中心规则翻译:CKUWDC范业隆
序言
FCI世界犬业联盟-国际实战犬竞技赛(下文简称国际实战犬赛)是由来自欧美数个国家的代表共同创立的赛制,初衷是希望利用当时各国工作犬及实战犬赛事运动中的环节组成一个适合让所有工作犬爱好者、初学者以及资深训练师都能参与进来的工作犬竞技运动。赛事的最终目标是为了给观众提供娱乐方式,为参与者提供渐进式难度的活动项目,为训练爱好者提供一个竞技平台。
练习国际实战犬赛,需要配备有各种器械的围栏场地,以及在训练中安排一到两位穿戴全身靶衣的假想敌。假想敌是犬只和训犬师的伙伴,同时帮助裁判在比赛的特定条件下确定当天最好的训犬师和犬只的组合。这些规定涉及比赛程序、各个项目的分数以及出现失误时如何扣分。
为了让更多的爱好者群体能够接触到国际实战犬赛,赛制描述应清晰易懂,实践需简洁明了,裁判执裁应清楚准确。每当出现背离规则的情况出现时,裁判们应牢记该项赛事发起人的初衷。最重要的是对规则主旨的尊重:禁止任何有损犬只健康或虐待的展示方式。
该项赛事由三个项目组成,将按以下顺序进行:
项目1-服从项目 项目2-跳跃项目项目3-攻击项目
每名参赛者的参赛项目顺序都是一样的。
注:国际实战犬赛的规则已被翻译成多种语言,不同的翻译版本存在差异,如存在表述不确定性,以法语版为准。
假想敌
尽管工作犬及实战犬赛事的历史并不悠久,但是假想敌(Decoy)在过去曾有过许多不同的称呼方式。如暴徒(Apache),罪犯(Malfaiteur,Lawbreaker),人型目标(Mannequin),或稻草人(Paillasse,Strawman)等等。现在,更多地被称之为假想敌(Decoy,Lure)或助训员(Helper,Assistant)。每一个曾使用过的术语都带有训练艺术的哲学。与“狩猎犬”“护卫犬”“看守犬”相比,假想敌的角色并不带有真正的攻击性,他在实战犬赛中的任务通常是保护自己、尝试逃跑或偷走由犬只看守的物品。
正如前文所说,假想敌是犬只和指导手的伙伴,也是他们的对手,因为必须在比赛中与裁判合作,帮助裁判根据犬只的表现给出对应的成绩和排序。如果假想敌的行为全程保持被动,那也仅仅是一个可以移动的被犬只咬的木偶。在比赛中,假想敌的职责是让裁判评估犬只的水平,所以他必须与犬只发生一定的冲突。尽管受到全身靶衣的保护,但依然承受着较大的风险,同时还有来自不同犬只可能出现的不可预判的表现所带来的风险。
虽然假想敌的工作十分困难,但是依然应始终保持最佳的体育道德精神。抛开对假想敌技术层面的讨论,我们制定了假想敌的三条基本原则:
• 无论在任何情况下都应保证绝对的公平公正• 无论在任何情况下都不会以任何方式给犬只带来身体上的痛苦或伤害
• 应当表现得如同未穿戴全身靶衣一样,以敏捷的身法,欺骗的动作,威胁的方式或迅捷地躲闪,来保护自己或影响犬只。
假想敌不可以使用击打棍去攻击犬只。当假想敌使用信号枪时,应45度角朝向天空发射。在正面迎击项目开始前,假想敌应在中心线上距离起点10到20米以外。在逃跑截击项目开始前,假想敌应在中心线上距离起点10米以外。假想敌禁止在任何情况下讲话或使用声音口令去命令犬只行动(可以使用肢体动作)。在允许使用液体时,仅可以使用水。假想敌的工作将由裁判指挥负责,假想敌应服从裁判的要求。在国际实战犬赛3级中,可以在比赛中轮替使用两到三名假想敌。(护主项目中最多使用2名假想敌),由裁判制定假想的具体任务和工作。在国际实战犬赛2级中,可以在比赛中使用两名假想敌,由裁判制定假想的具体任务和工作。在国际实战犬赛1级中仅可使用1名假想敌。
假想敌的选择,由该国犬业俱乐部制定的方式实行。
规则
准备
所有指导手应穿着得体,为犬只做好参赛准备。禁止使用包括食物或玩具在内的任何奖励,否则将失去比赛资格。
在赛环助理裁判的邀请后,指导手携犬进入场地。随后,指导手跟随助理裁判到主裁判面前进行报道。犬只在随行位置,不得佩戴项圈,牵引绳或口笼。指导手应向裁判报告他在跳跃项目中选择的初始长度和高度,同时向裁判说明是用声音还是口哨从远处唤回犬只。
在国际实战犬赛3级赛前,指导手应以抽签方式选取信封决定第一次逃跑追击是否有紧急唤回。指导手将未开封的信封交予裁判。裁判是唯一了解信封中内容的人,直到犬只进行到该项目时才知道是逃跑追击还是紧急唤回。裁判必须在项目开始前在评分表上注明,紧急唤回是在第一次逃跑追击还是在第二次。当有两名当值裁判时,两人同步逃跑追击的进行顺序。
在国际实战犬赛2级和3级中,指导手背对犬只,选择一块带有编号的木块用于搜索物体项目,木块不能向犬只展示。指导手可以将木块握在手中最多5秒,不得有任何其他操作或将木块暴露在额外的气味当中,随后将其置于一个空袋中。在指导手将物品放到指定位置前,不得将手伸向袋子。
所有项目的通用说明
指导手在助理裁判的引领下,带至每个项目的起始位置,距离出发线3米以内。允许在出发线前3米的准备线位置为犬只做好准备。
在准备线前的动作应快捷迅速,在裁判鸣笛后,应快速来到出发线前准备开始。若未能遵守裁判鸣笛指示来到出发线,将扣除2分态度分。随后由裁判计时,指导手有30秒的时间将犬只带到出发线的位置。如果指导手在30秒内仍未做好准备,该项目将被取消。指导手仅可以给出一次动作口令(根据项目要求,坐,卧或是站)。然后指导手可以给出一个可选的停留口令,例如:别动,定,停留等。
任何重复的口令(动作口令或停留口令)都被视为额外口令,每给出一次额外口令将被扣1分。如果在准备过程中指导手给出了4次额外口令,即便30秒准备时间未到,该项目仍然会被取消。
当指导手和犬只在出发线前准备好时,裁判将给出另一次鸣笛声,示意项目开始。指导手应使用适当的开始口令,可将犬只名字连同口令连贯给出,任何不规范的口令可能导致扣分。
如果指导手在项目结束时未遵守裁判的信号将扣2分。
对于所有项目(不包括逃跑追击和正面攻击),如果指导手或犬只在正确的开始位置,在裁判给出开始的信号之前开始项目将被扣4分;如果指导手或犬只在正确的开始位置,裁判发出开始信号后,犬只在指导手给出口令之前开始,将被扣2分。
正确的开始是指导手和犬只在正确的位置以正确的动作开始项目。如果指导手和犬只没有正确的开始,则适用“所有项目的通用说明”中定义的规则。
项目结束时的唤回口令
有两种类型的唤回口令,远距离唤回和近距离唤回(1米距离或更近)。近距离唤回被视为唤回至随行位置。
所有远距离的唤回可以用声音或口哨进行。指导手必须在向裁判报告时,说明将要使用的唤回方式,如果使用与报告类型不同的唤回方式将会被扣分。所有的近距离唤回必须使用声音进行。在项目中允许更换口哨,但必须是同类型且发出的声音相同。
无论是通过声音或是口哨进行唤回,必须简短且果断。不连续的唤回口令将被视为附加口令,并会被扣分。
唤回时仅允许使用一次口令,必须简短且果断。任何附加口令会被扣分(详见每个项目的说明)。如果服从性不足的犬只需要额外口令唤回,指导手同样会因整体态度原因被扣分。
同样,如果犬只在扑咬项目结束5秒以上仍然不放口,无论是否被唤回,都会在返回时扣10分,且可能在整体态度上被继续扣分。犬只如果没有在规定时间内回到随行位置,在扑咬项目结束时,扣10分。在国际实战犬赛1级中,指导手允许让犬只在结束攻击项目时,以监视假想敌的方式代替唤回,指导手必须在报告时向裁判说明。在所有攻击的项目中,如果在发出第一次唤回口令30秒后犬只依然没有停止扑咬,裁判将要求指导手将犬只牵好并带离场地。如果在任何扑咬项目中,指导手在第一次停止攻击口令后,在没有得到裁判允许的情况下擅自移动,裁判同样将要求指导手将犬只牵好并带离场地。以上两种情况都将导致犬只失格,并失去已获得的所有分数,同时在考级册上注明:“失格”。
整体态度
如果裁判认为某个项目的执行存在不当行为,他最多可以扣除该项总分10%的分数。这同样适用于指导手在赛前、比赛期间或赛后的任何不当行为。处罚的严厉程度可以超过裁判的裁决。
比赛期间,参赛者除了报告自己犬只生病的情况,在赛事执行团队面前进行的所有干预行为都是严格禁止的。这种情况将被扣10分的整体态度分,如果违规行为再次发生,将被驱逐出比赛。整体态度扣分从参赛者获得的总分中扣除。
在发生严重违规的情况下,裁判可以驱逐参赛者并没收他的考级册。裁判还将提交一份详细的调查报告,将其交给国家工作犬俱乐部委员会,同时可递交工作犬俱乐部主席。
项目时间分割
整个比赛程序应该一次性完成,除非出现极端高温等特殊情况可能导致犬只出现健康风险或安全隐患。在极端高温的情况下,如果比赛不能在令人满意的条件下进行,可选择在清晨或傍晚进行,仅有3级比赛允许被分为两部分进行。指导手应始终关注犬只状态,对犬只健康负责,并始终有权利选择退出比赛。
当赛事组委会决定需要分割比赛项目时,裁判必须在执行前进行确认并作出决定。如果项目被划分为两部分,仍然需要按照服从、跳跃和攻击的顺序进行。服从/跳跃/攻击项目必须均分为第一部分和第二部分。演示犬先展示第一部分,在所有犬只进行完第一部分后,演示犬再进行第二部分的展示。项目的分割只能在极端条件下使用,而不是系统地使用。比赛一旦开始,不能再分割比赛项目。
参加国际实战犬赛比赛的条件
指导手必须持有其所在国家的国际实战犬赛主管部门颁发的考级册。任何犬种都可参与该项竞赛。犬只必须持有由世界犬业联盟FCI成员颁发的犬只血统证书。参加国际实战犬赛比赛的最低年龄为12个月。参赛犬只必须完成FCI认可的社会化考核测试,并有健康记录。
犬只参加国际实战犬赛三级比赛之前,犬只必须通过以下阶段:
• 在国际实战犬赛1级中通过两次且获得200分中的至少160分,获得国际实战犬赛一级资格。
• 在国际实战犬赛2级中通过两次且获得300分中的至少240分,获得国际实战犬赛二级资格。
如果指导手愿意,他可以在每个级别中参加任意场赛事。此外,只要参赛犬从未在国际实战犬赛三级比赛中获得过300分,指导手依然可以参加国际实战犬赛2级比赛。
根据FCI的规则,参加国际实战犬赛比赛的公犬必须有两个正常且完全进入阴囊的睾丸。
任何公犬都需要有兽医证书,在文件中说明它有两个睾丸且发育正常,在犬只第一次参加国际实战犬赛之前,阴囊应完全下垂。如果犬只在第一次参加国际实战犬赛比赛后发生事故或生病,并因此切除一个睾丸,则它需要第二份证明,说明在因受伤或生病切除睾丸之前是完整的。
处于发情期的母犬可以参赛,在当天所有出场犬只中的最后一只出场。处于发情期的母犬应避免与其他参赛者接触。参赛者必须尽快通知组织者该情况,最迟应在抽签前通知。
预计在4周内分娩的母犬和距离比赛日期分娩后不足8周的母犬不能参加比赛。所在国家的相关规定更严格时以所在国的要求为准,但不能低于该限制。
一旦比赛场地布置好,所有参赛者都禁止进入,否则可能将取消参赛资格。
在比赛场地、停车场等任何场地内使用电颈环、刺钉项圈或矫正项圈,一旦被发现将会被取消参赛资格,并可能受到后续处罚。
比赛的组织
赛事的组织工作应格外认真,不能忽视任何细节。组织方应尽可能地通知到来自任何一个国家及地区的选手,保障选手参赛权益。
裁判及执行团队
赛事执行团队将由一名或多名有资质的裁判和协助履行职责的假想敌组成。一名裁判的单日最长执裁时间为9小时。整个执行团队应选择一名充分了解赛制和赛事执行的副裁判。
为了比赛的顺利进行,应有一至两名有经验的赛场执行人员。他们在裁判执裁过程中,尤其是在观察比赛过程中提供必要的协助,包括但不限于协助记录等工作。组织方还应提供至少2名现场助理,在赛环内进行移动各种障碍物、投掷食物等工作。
比赛场地
国际实战犬赛的比赛场地尺寸的面积至少为60米乘以40米,最大面积不超过5000平方米。地面不能过硬,不能是铺砌路面或是石子路面。应留意场地中不能有给犬只可能带来伤害的物体或地形。整个赛场应使用围栏等方式围起来。场地应至少保留两个出入口,一个为指导手及犬只出入使用,另一个为假想敌使用。
场地可有与比赛主题相关的装饰。主题可由赛事承办方决定。组织者负责对比赛场地进行必要的标记,包括每个项目的起点。组织者负责标记场地。必须标记每个练习的起点。对于看守物品项目,必须在场地中画出两个同心圆,半径分别为2米和5米。
在跳跃项目中,应根据标准要求将高板墙、长距离跳跃和障碍的起点清晰标记在场地上。在延缓项目和拒食项目中,应为指导手的隐藏区域提供一个可供指导手观察其犬只的窗口。在前进项目中,标记一条不短于20米,平行于起点的标记线,在标记线末端分别放置1根标记杆或旗帜作为标记。在旗帜内5米处,标记2条1米长的垂直线作为最佳行进区域的垂直线。中心线应位于场地中心,不得使用对角线,且不能有任何可能分散犬只注意力的物体存在。锥形标记可替换为比赛主题相关的装饰物。
赛事后勤工作
比赛组织方应准备以下物品,并交给裁判处理。
• 6件攻击干扰物
• 1个攻击障碍(详见规则)
• 6个搜索和押解的藏身地点,一个移动藏身点
• 3个跳跃障碍 (根据介绍的尺寸进行准备)
• 6件搜索物品 (参见规则中的列表)
• 食物 (详见规则)
• 用于搜索的木制物品(15 x 2 x 2 厘米)
• 6毫米或9毫米口径信号枪
• 紧急唤回时所需的信号标志(信号旗)
• 官方评分表
• 在延缓项目中1-2名干扰工作人员
• 3或4个用于看守物品项目中的物品
• 准备的所有物品最好与比赛主题相关
裁判将在比赛当天的早晨,选择寻回的物件和攻击的干扰物。在演示犬展示时,裁判应注意物品的使用不能与要看守的物品相似。
组织者还应为每天,每个级别提供演示犬。组织方应准备一个喇叭(号角)用于裁判给出信号。不可为裁判准备哨子,哨子只可由指导手在唤回时使用。
应为假想敌准备一个可以关闭的区域,或可以关门的房间,以便于在非工作时间时隐藏自己。这个区域应至少距离场地5米,使犬只无法察觉到假想敌的存在。在场地内和场地的边界处,不得放置任何存水的器具,这可能导致犬只分散工作注意力。在搜索项目的准备期间,在场地外提供一个隐蔽处,用于让犬只和指导手一同隐藏。该位置应为犬只准备犬只饮水处,提供足够的饮用水。
演示犬
演示犬应该在赛事开始前已通过所有的级别的比赛。所有的参赛选手应出席演示犬的展示。
抽签
赛事组织方将举行抽签仪式决定比赛的出场顺序。也可以选择为每一个项目的出场顺序进行抽签。可由裁判决定是否对项目的出场顺序进行抽签,无论选手是否出席,抽签仪式都应进行。
在搜索项目开始前,犬只必须已经进行过对假想敌的扑咬。换言之,攻击项目不能从搜索开始,在三级中也不能从逃跑追击开始。如果保护物体是第一个进行的项目且是在搜索前的唯一项目,在该项目中的假想敌必须进行第一次攻击,让犬只有机会进行扑咬。
距离指挥项目的初始动作(坐、卧、站)将由抽签决定。同时在延缓项目中的初始动作也可通过抽签决定。
食物
使用的食物必须多样化,大小合理,不大于拳头大小。可以是生肉或熟肉、鱼头、奶酪、干蛋糕或是糖制品等等。禁止使用动物骨头或是生猪肉(有感染奥耶斯基病毒/猪I型疱疹病毒的风险)。
击打棒
击打棒必须由竹子制成,长60—80厘米,直径在20—30毫米之间,在其长度四分之三处分割开成交叉状。在击打过程中,棍子不能像风扇一样分开。
假想敌的靶衣
必须能够有效保护假想敌,并能够让假想敌保持足够灵活,以便于以灵活的方式轻松行动或奔跑。
假想敌穿戴的靶衣不能偏离标准,靶袖不能太宽,也不能太硬让犬只无法咬住。假想敌穿戴的靶衣必须可以让犬只能够咬到至少7厘米深的位置,在犬只口中的厚度应保持在3厘米到5厘米之间。
禁止假想敌在比赛中根据犬只的情况更换靶衣。
口令
口令将根据国际实战犬赛规则给出,无论在任何地方比赛都可以用指导手的母语给出口令。任何不连贯给出的口令,再次发出的口令或让犬只停住,都被视为一次额外的口令。
评分表
评分表格必须符合官方模型要求,并包括与比赛相关的所有说明,每个级别都应有单独的表格。
在赛事中,每条参赛犬都有3份表格,1份由裁判填写的原始表格和2份复印件。原始表格由裁判留存,一份复印件在公布结果时交予参赛者,第二份复印件留存在俱乐部进行存档。
裁判的职能和责任
每场赛事的裁判将由比赛国家的官方俱乐部指定。如果裁判团队包含一名以上的裁判,他们将一同执裁。裁判必须完全熟练掌握并遵守规则。
裁判对于比赛拥有绝对控制权,并对赛事的所有项目部署负责,特别是有能力对所有级别的假想敌工作职责进行规范。他们必须在严格遵守规则的情况下,对错误进行清晰的判罚。每一处判罚都对应一次失误,一次犬只的不足或指导手的违规行为。所有的指导手,包括所有的初学者,都应了解规则和比赛要求,并理解判罚的规则。
裁判对所有规则中未描述的事件的处理有最终决定权。只有裁判可以对比赛施加影响,所有项目必须在裁判的要求下进行。裁判将使用喇叭,对每个项目的开始和结束发出信号。裁判应确保所有的犬只将以相同的方式进行项目,所有参赛者的参赛条件必须相同。
裁判将对犬只获得分数汇总并在评分表上签字。成绩应在比赛15分钟内公开向选手公布。
服从项目
1.无绳随行 6分
项目说明
请参阅“所有项目的通用说明”。
在裁判或助理裁判的指示下,由演示犬进行一次线路演示,线路不应过于复杂,包含3次方向变化,一次向左,一次向右,一个半圆,两次停止,指导手在现场记下指示犬的线路。在停下时,犬只可以是任意姿势,停止和变化将在裁判的信号后完成。如果指导手在进行线路中出现错误,将被扣态度分。如果因路线错误,导致避免了路线中的困难部分,指导手将失去该项目所有分数。在无绳随行过程中,指导手的手中不得持有任何物品。
扣分说明

2.延缓 10分
项目说明
请参阅“所有项目的通用说明”。
由裁判指定延缓的位置,在地面的一块区域,或一块足够大的平稳固定的区域进行延缓。在国际实战犬赛1级和2级中,犬只以卧下姿势在指定位置进行等待,在国际实战犬赛3级中,可通过抽签决定犬只以卧下或坐下的姿势等待。比赛期间,裁判可根据场地和天气条件改变位置。
该项目持续1分钟,在指导手进入指定的掩体后开始计时。在指导手离开犬只到掩体内之前,不可回头查看。
在延缓过程中,将出现分散犬只注意力的行为,允许突然发出噪音,犬只需表现得无动于衷,不移动位置,不改变姿势。干扰将视级别进行升级,但不可以使用带有挑衅或攻击性的行为。禁止使用来自假想敌的干扰。在1级和2级中,干扰的距离应保持10米以上,在3级中,干扰的距离应保持5米以上。
扣分说明

3.前进 12分
项目叙述
犬只必须通过1条20米长,平行于起点线,在线两侧末端有外圈标记的终点线。在外圈标记内5米,有两条长度为1米的垂直线标记出最佳区域,标记可以使用符合赛事主题的装饰物。国际实战犬赛1级,2级和3级的长度分别为20米,30米和40米。在前进路径和正交轴上不得有任何物品或障碍,避免使用球或玩具等可能引起犬只注意的标记。犬只跑到内圈标记内的最佳区域最多可获得12分,跑到内圈标记和外圈标记之间最多可获得8分,跑到外圈标记外最多可获得4分。
项目说明
请参阅“所有项目的通用说明”。
在起点线中心位置,标记一条垂直线,犬只在该位置准备开始。在裁判的示意后,指导手给出口令让犬只前进,犬只必须前进并穿过终点线。在指导手发出前进的口令后,犬只有20秒的时间通过终点线。当犬只越过终点线后,指导手将犬只唤回到随行位置。犬只必须在20秒内返回,否则会失去所有分数。当犬只在通过终点线前指导手给出口令,犬只继续前进并通过终点线,将被视为额外口令并扣4分。当犬只通过终点线,指导手等待过久才给出唤回口令,将扣态度分。
扣分说明

4.距离指挥 1级:10分;2级和3级:20分

项目叙述
犬只应在地面上开始项目。根据不同的级别,犬只与指导手在双方视线范围内,1级距离5米,2级距离10米,3级距离15米。在给出改变姿势的口令前,指导手可以呼唤犬只的名字1次并衔接口令,但不能有停顿,否则被视为双重口令。裁判应留意犬只向前移动的距离,每向前移动1米扣1分,如果犬只提前回到随行位置,犬只无法获得剩余的全部分数。
每次姿势变换,指导手可以给出两次额外口令。如果犬只在两次额外口令后仍未正确完成姿势变换,则项目终止,已获得的分数将保留。同时,如果犬只在口令前改变了初始姿势,指导手有两次额外口令机会让犬只重新回到初始姿势。
如果犬只在口令前,提前做出下一个姿势变化,将无法获得这个姿势的分数。为了避免犬只提前知悉助理裁判的姿势变换要求,通常会使用一个三面的信号提示板。犬只将背对助理裁判,指导手根据助理裁判手中的信号,给犬只姿势变换的口令。
在裁判或助理裁判明确地给出下一个姿势变化的要求之前,犬只必须保持当前的姿势。如果犬只的姿势在口令前变化,指导手需要重新要求犬只回到正确的姿势。如果下一个姿势的指示已经给出,在指导手的口令前犬只提前做出了姿势变化,这个姿势将因为过早做出而无法获得分数。
项目说明
请参阅“所有项目的通用说明”。
指导手来到指定位置,让犬只在出发线坐好等待。当裁判给出指示后,指导手给出初始姿势的口令,然后离开犬只并给出停留的口令。如果未遵从裁判的信号,将扣掉1分态度分。
在项目进行过程中,指导手应始终可以看到自己的犬只。在裁判的指示下项目开始,犬只做出规定的动作,坐,卧或立。在国际实战犬赛1级中,3个姿势每个姿势将做一次。在国际实战犬赛2级和3级中,每个姿势将做2次,姿势变换的信号将由助理裁判给出。在项目进行中,不可尝试转移犬只注意力。
扣分说明

5.拒食 1级:5分;2级和3级:10分
项目叙述
在国际实战犬赛二级和三级中,裁判选择六种不同的食物放置在地面上。在1级中,地面上不放置任何东西。不可以使用骨头或生猪肉(有感染奥耶斯基病毒的风险)。同样,在搜索物品或寻回项目中,禁止将食物放置于木块5米范围内。这条规则同样适用于看守物品项目。拒食是一项单独练习,不能在另一个项目中同时进行。
项目说明
请参阅“所有项目的通用说明”。
项目开始时,犬只以卧下姿势开始。如果犬只在第一块食物放置好后坐起来,无扣分。在国际实战犬赛1级中,在服从项目中只扔出一块食物进行干扰,裁判来掌握位置和时机。在国际实战犬赛2级和3级中,将2块食物同时或分别扔出,或放置于地面。每条犬只在拒食项目中所使用的食物应相同。
该项目的目标不是为了给犬只设置陷阱,所以食物不应放置在工作的区域,跳跃落下的区域,以及前进的起点等。如果扔出的食物正好扔到犬只张开的嘴中,犬只随即将其吐出,不会扣分。如果犬只舔舐或吃掉食物,项目失败并失去所有分数。
扣分说明

6.寻回掷出物品 12分
项目叙述
寻回物品的时间限制为15秒。使用的物品将由抽签选出,或由评委在比赛开始前从给评委的清单中选出(哑铃、瓶状物、圆柱体、塑料瓶、装有水的实心瓶、小袋子、婴儿车的轮子等)。犬只必须能将物品含在口中,最大重量为1公斤。禁止使用任何玻璃或金属物品。在寻回物品的五米范围内不能有其他物品,该项目是为了让犬只寻回物品,而不是识别物品,同时附近也不可以存在食物。在指导手将物品拿到手中之前,不可以移动双脚。规则中允许物品与一双鞋捆绑在一起。犬只有3次机会将物品拾起含在口中,否则将会因咀嚼物品扣掉分数。
项目说明
请参阅“所有项目的通用说明”。
• 在裁判的示意后,物品必须扔出至少5米远。• 在裁判示意后,指导手可以给出衔回的口令,仅可给出一次口令。• 可以给出一个简短口令让犬只吐出物品,例如“给”或“吐”• 如果指导手在犬只离开后移动:无扣分• 如果指导手在犬只返回时移动,将被视为额外口令并失去所有分数
• 指导手在项目结束,应等待鸣笛后才可以离开。
扣分说明

7.搜索物品 2级和3级:15分
项目叙述
项目时间限制为1分钟。
使用的物品必须是长15厘米,直径2厘米的未经使用过的木块,并进行编号。指导手从已编号的数块木块中选择一块。在裁判桌前进行准备时,指导手可以拿起木块,在其手中的时间不得超过5秒。所有指导手都应在同一时间段挑选木块。
随后指导手将木块放入自己的空口袋,不可再有任何其他操作,或暴露在其他额外的气味中,也不得向犬只展示木块,并向裁判报告木块的编号。该项目将使用相同的,未编号的木块放置在指导手的木块附近。放置木块时,指导手应背对犬只,不得将木块展示给犬只,在此之前,指导手禁止将手伸入口袋当中。在这个项目中,作为干扰的木块不得被犬只触及。使用的木块必须合理,在整个项目进行中无需其他干扰。与寻回类似,在项目区域五米范围内,除非是主题装饰的一部分,否则不得有其他的物品存在。
当有犬只将用于干扰的木块捡起后,应使用备用木块进行替换。
项目说明
请参阅“所有项目的通用说明”。
每名指导手要将犬只放在助理裁判指定的位置。指导手随后在犬只的视野范围内,将物品放置在30米外的一个1米X1米的方形区域内。在放置木块时,指导手应背对犬只。
当指导手回到犬只身边时,其他相同的未编号木块将被放置在距离第一个木块至少25厘米,1米乘以1米的方形域内。在国际实战犬赛2级中额外放置3个未编号木块,在国际实战犬赛3级中额外放置4个未编号木块。
在裁判示意后,指导手发出口令让犬只出发搜索并寻回物品。只允许通过声音发出单次口令。犬只可以在出发前嗅闻指导手的手部,让犬只清楚了解项目。
如果指导手在犬只离开后移动,不会扣分。如果指导手在犬只返回时移动,将被视为额外口令并扣15分。在指导手将物品拿到手中之前,不可以移动双脚。
当犬只带回正确的木块和一块错误的木块时,将在扣除第二个木块的态度分和可能出现的扣分后,获得剩余部分分数。
指导手将寻回的物品交给助理裁判,由裁判进行核实。
扣分说明

跳跃项目
在国际实战犬赛1级中,指导手可以从三个跳跃项目中选择任何一项进行,指导手需要在准备阶段向裁判进行报备确认。
在国际实战犬赛2级中,必须选择障碍(20分),并从3.5米长距离跳跃(15分)或2.1米高墙板(15分)中选择一项进行。
请参阅“所有项目的通用说明”。
以下说明适用于三项跳跃项目(障碍,长距离跳跃和高墙板)
• 指导手带犬只到距离障碍物合适的位置
• 指导手可以在演示犬做展示的时候计算合适的距离
• 指导手可以在标记的区域就位,可以从障碍的左侧或右侧靠近三个障碍
• 指导手不能触碰跳跃物或倚靠障碍
• 如果指导手的位置不正确,未在标记的区域准备,触碰跳跃物或越过障碍,裁判会告知指导手失去一次尝试机会,让犬只重新就位并扣掉2分。
• 如果犬只在开始口令之前离开了起始位置,指导手必须让犬只重新就位,并扣掉一次尝试分数。
犬只在每个跳跃项目中有3次尝试机会,在高墙板和长距离跳跃中有3次向前跳跃机会,在障碍中,犬只有3次机会向前跳跃和三次机会跳回。如果犬只在跳回时失败,或者拒绝跳回,指导手可以让犬只在可以跳跃的位置重新就位,然后回到障碍前原先的位置并等待裁判的信号。在障碍项目中,仅允许在前去跳跃时给出一次口令,如果犬只未能完成其中任何一次跳跃,随后不能调整障碍高度。
跳跃仅可给出声音口令。任何肢体动作均会导致扣分,指导手可以自然地看向犬只,不可以使用非常规眼神。多字的口令必须连贯发出,否则将被视为额外口令并扣5分。
如果在走向指定区域时,指导手给出一个类似于扔球的手势,将被认为是一次违规动作并将失去所有分数。
在得到裁判的开始信号后,指导手在给出口令时有小幅度的手势动作将扣2分。一次持续的手势将被视为额外口令并扣5分。
在任何跳跃项目中,犬只完成一次跳跃后,指导手可以选择给出一次唤回的口令或一次停在原地的口令,每一次跳跃后的口令可以不同。如果给出让犬只停留在原地的口令,指导手需要走向犬只。如果选择唤回,无论是否给出唤回的口令,犬只需要在10秒内回到随行位置,否则会被扣分。如果指导手让犬只停留后再给出唤回的口令,将被视为额外口令并扣2分。
可以使用口令或口哨来唤回犬只,但在所有跳跃中必须保持一致。指导手在向裁判报告他在跳跃项目中选择的初始长度和高度时,同时向裁判说明是用声音还是口哨从远处唤回犬只。
如果犬只未听从指导手的口令,在跳跃后未停留,也将被扣分。指导手在完成跳跃项目并听到裁判鸣笛示意后,才可以结束项目。如果指导手给出口令时犬只被阻挡未能完成口令,不会扣分。
项目开始前,指导手不允许向犬只做出引导跳跃的动作。
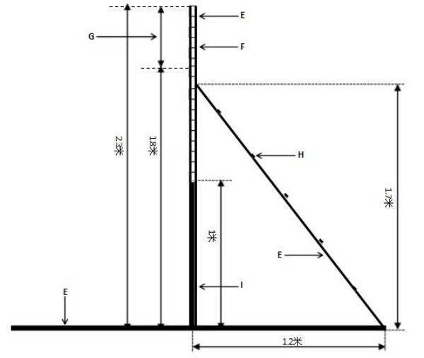
1.高板墙 1-3级:15分
高度和分数对照

在国际实战犬赛1级中,仅有1.8米一个高度选项,15分。
项目叙述
高墙板是由底部连接在一起的整块面板制成,高度1米;然后是一排10厘米高、27- 30毫米厚的可拆卸的粗糙木板进行堆叠。高墙板的宽度为1.5米至1.9米之间。为了让犬只可以跳下去,在1.7米高的位置上,斜放一块固定的木板,地面位置距离墙板约1.2米。在斜放的木板上每隔30厘米放置一根板条,用于防止犬只摔落。同时斜放的木板也可以为高墙板做支撑。因为只有一次向前跳跃,所以仅在一侧有斜放的木板。


2.长距离跳跃 1级和2级:15分;3级:20分
长度和分数对照

在国际实战犬赛1级中,仅有3米一个长度选项,15分
项目叙述
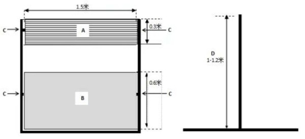
长距离跳跃中没有沟渠。长距离跳跃障碍由三块木板组成的框架,第一块长2米,高10厘米,放置于前方,两侧用两块木板连接,每块木板长3米,高十厘米,另一端高20厘米,用直角形金属固定在地面防止摇晃。
框架使用彩色橡皮圈、轻金属条或PVC管,沿两侧长度每隔30厘米固定在障碍上。
在不踏入框架的情况下,犬只应跳过中心1.95米长、1米宽的可移动类似于跷跷板的踏板,该踏板可以在框架内上下移动,并不会接触框架侧面。可以通过移动踏板,将障碍长度设置在3米至3.5米之间。也可以通过将框架与踏板分离,将障碍长度设置为4米。踏板的构造必须确保当低的一侧接触地面时,高的一侧离地面30厘米。犬只踩踏到框架将被扣4分,视为拒绝跳跃并失去一次尝试机会,必须重新开始跳跃。
长距离跳跃架 侧面图

长距离跳跃架 上方图

长距离跳跃架 前方图


3.障碍 1级:15分;2-3级:20分
高度和分数对照

在国际实战犬赛1级中,仅有1米一个高度选项,15分,往返各7.5分。
项目叙述
障碍由一块1.5米宽、60厘米高的可移动面板制成下半部分,配有焊接在支架上的旋转轴。面板上方有一个宽度相同、高度为30厘米的可旋转,可调节高度的障碍,在最轻微的撞击下它即会坠落,以确保不会对犬只造成任何伤害。
项目说明
当犬只跳过障碍后,指导手仅可给出一次口令让犬只在落地后留在原地。如果同时使用声音和手势口令将被扣2分。在裁判给出允许跳回的信号后,指导手仅可给出一次声音或手势口令。任何额外的位置口令会被扣分。在犬只跳回后,指导手可以选择唤回犬只,给出口令后犬只必须在10秒内回到随行位置。指导手也可以选择让犬只在障碍后停留,在得到裁判信号后,走到犬只旁边。


扣分说明(3个跳跃项目通用)

扣分说明 (仅适用障碍)

攻击项目
1.正面攻击(使用击打棒)
分数构成

项目叙述
时限:10秒
距离:1级:30米;2级:40米;3级:50米
假想敌允许的行为:
假想敌可以阻拦,威胁,恐吓犬只,冲向犬只最多两步,在犬只未咬到或脱口时进行躲避。在国际实战犬赛1级中,假想敌仅可使用击打棒,且两只手臂的位置必须让犬只可以咬到。在国际实战犬赛2-3级中,假想敌可以使用干扰物代替击打棒。
假想敌禁止的行为:
躲避第一次扑咬;击打犬只,以及任何可能带给犬只伤害的动作和行为均被禁止,一旦假想敌有任何违反动物福利的行为,将被立即驱逐出场,并可能会有后续处罚。
障碍物:
• 水沟或塑料水盆,水深不超过20厘米• 干草垛• 堆放或直立摆放的轮胎圈• 垂直固定在横杆上的条带
• 网状材料
障碍物宽度不得超过80厘米。水沟/水盆障碍不得超过25厘米高。轮胎圈,干草垛,和网状障碍物高度不得超过80厘米。障碍长度应在8至10米之间,确保裁判可以判断犬只在冲向假想敌时的状态。障碍物不能让犬只受到任何伤害或让犬只有任何受伤的风险。设置障碍的目的是让犬只冲向假想敌的过程中减速,以帮助裁判评判犬只在击打棒或其他干扰物前的胆量与自信,而非制造危险,因此障碍不能有任何安全隐患。假想敌应站在障碍物5米外居中的位置。横杆可以置于障碍物上方。假想敌应在障碍物前吸引犬只的注意,在整个项目过程中,犬只都应能够看到假想敌。
项目说明
请参阅“所有项目的通用说明”。为确保对犬只的工作态度评估的一致性,在犬只进攻时,假想敌应保持存在感吸引犬只注意。在犬只发起进攻时跑动的前10米距离,假想敌应明确地展示自己的位置来吸引犬只的注意。在正面攻击中,假想敌应使用击打棍吸引犬只注意。裁判可以根据情况,要求假想敌从障碍物前移动10到20米到障碍物后,随即示意指导手命令犬只进攻。如果情况允许,假想敌在每次归位时都应越过障碍物。假想敌在正面攻击中应在障碍物后至少5米。假想敌不能在犬只跳起在空中时冲向犬只。假想敌在冲向犬只时应确保始终在障碍物后至少5米远。在每次进攻中,假想敌在为犬只提供缓冲的同时,应始终保持在进攻路线上。在犬只第一次攻击时假想敌不可躲避。若假想敌的缓冲动作过早,因这一非自愿躲避动作导致的扑咬延迟不扣分。在项目结束口令发出前,假想敌不得停止移动。项目结束口令发出后,假想敌应立即完全静止。在所有攻击的项目中,当假想敌得到裁判的指示开始吸引犬只注意后,指导手发出的额外的让犬只保持稳定的声音或动作口令将被扣分。扣分方式与过早出发相同,从开始部分扣10分,扣5分态度分,并让犬只重新开始。在所有攻击项目中,如果犬只在唤回时没有咬到假想敌,或者在裁判给出信号前返回,唤回部分扣10分,并增加因未扑咬的秒数导致的扣分。在所有攻击项目中,如果犬只在项目结束时未咬到假想敌但尝试重新咬住,此时指导手在裁判的信号后唤回犬只,唤回部分将扣除5分,并增加因未扑咬的秒数导致的扣分。如果犬只在裁判鸣笛时,未得到口令前停止扑咬并返回,唤回部分将扣除5分。在所有攻击项目中,犬只在裁判出发信号前,缓慢爬过起点,每一米扣1分,超过10米将被视为过早出发,从开始部分扣10分,扣5分态度分,并让犬只重新开始。
扣分说明

2.使用干扰物正面攻击 2级,40分;3级,50分
项目叙述
距离: 30米
该项目规则与“使用击打棒正面攻击”项目相同。允许使用的干扰物(这些干扰物仅用于恐吓或干扰犬只)
• 树枝,响棍,衣服,报纸
• 塑料片或布片,空的或装满的水桶
• 任何可发声但无伤害性的物品。干扰物不能过大,可以保证犬只穿过时不受到任何伤害。在整个比赛过程中,干扰物应保持同样的状态。假想敌手部不可以有任何类型的如手套,束带或护套等防护。如果干扰物有把手,其大小不能大于手掌。该项目使用的干扰物不能在项目进行时盖住犬只。如果犬只对任何假想敌之外的人产生攻击性行为,项目应立即终止并失去所有分数。当犬只被认为是危险的,该参赛组合将被立即从场地内驱逐。当假想敌认为犬只会攻击脸部时,可以推开或闪避犬只。
项目说明
与“使用击打棒正面攻击”项目相同。假想敌使用干扰物,是作为测试犬只的勇气和胆量进攻欲望的方式,而非诱导犬只避开扑咬。
扣分说明
与“使用击打棒正面攻击”项目相同
3.逃跑追击 1级:50分;2-3级:30分
分数构成

项目叙述
距离:30 -40米
时限:10秒
项目说明
请参阅“所有项目的通用说明”。出于公平性的考虑,两次逃跑追击必须由同一位假想敌用同样的方式完成。假想敌应用相同的状态完成所有的逃跑追击。假想敌位于出发线10米的位置,在听到裁判鸣笛后第一时间开始项目。正常情况下在距离30—40米时开始。假想敌在犬只距离10米时提速并保持速度直到被犬只咬到。假想敌逃跑过程中不能回头看或尝试躲避。假想敌手持信号枪,在被犬只咬到时打出两枪。假想敌应尽力保护自己,但不可以使用暴力的方式。当指导手给出结束项目的口令后,假想敌应立即静止不动直到项目完全结束。
扣分说明
与“使用击打棒正面攻击”项目相同

4.逃跑追击-紧急唤回 3级:30分
分数构成
开始 10分;攻击 20分逃跑追击中紧急唤回的基础分数,是两次正面攻击的攻击部分分数之和的三分之一,并加上开始分数。可参考最下方示例。
项目叙述
距离:30—40米
两次逃跑追击的顺序将由指导手抽签决定,仅有裁判知道两次逃跑追击的顺序。裁判应在选手开始此项目之前在评分表上注明顺序。如果有两名执行裁判,应互相同步顺序。在进行逃跑追击前,假想敌不知道此次是否会紧急唤回。如果犬只未在其他攻击项目中进行扑咬,紧急唤回项目将不会进行。如果在紧急唤回项目之后进行的任何攻击项目中犬只未进行扑咬,紧急唤回项目已获得的分数将被取消。
项目说明
请参阅“所有项目的通用说明”。如果进行到紧急唤回项目时,在裁判示意后,负责拒食项目的工作人员,将在犬只出发后举起红色旗子。如果举起绿色旗子,则进行逃跑追击项目。当助理裁判看到红色旗帜后,应立即触碰指导手肩膀,提醒其将犬只紧急唤回。假想敌在听到唤回口令后应继续保持当前速度逃跑,不刺激犬只,不使用信号枪。如果犬只在唤回口令后,来到指导手3米半径范围内,(犬只不需要保持静止状态),指导手可以给出额外的唤回口令,但扣掉5分。
扣分说明

示例一:
基础分数:28 + 26 = 54 / 3 =18
开始分数:+10
分数上限:28
在距离假想5米位置时唤回:-4
逃跑追击-紧急唤回得分:24
示例二:
基础分数:30 + 30 = 60 / 3 =20
犬只在信号后,口令前开始:+5
分数上限:25
在距离假想2米位置时唤回:-0
逃跑追击-紧急唤回得分:25
示例三:
基础分数:30 + 30 = 60 / 3 =20
开始分数:+10
分数上限:30
在距离假想4米位置时唤回:-2
犬只返回到距离指导手五米半径之外:-20(基础分数上限20,扣除剩余18分)逃跑追击-紧急唤回得分:10
5.搜索和押解 2级和3级:40分
分数构成
搜索 10分;押解 30分
项目叙述
藏匿地点的数量:6个固定地点和一个可移动地点,由裁判决定。在这个项目中,第二名假想敌需要隐藏在距离场地至少5米外的位置,该区域可关闭,确保在犬只离开场地时无法看到或接触到第二名假想敌。搜索和吠叫的时限由裁判根据场地条件决定,一般在2~3分钟。裁判或助理裁判的站位可以看到掩体内发生的情况。当犬只没有表现得足够警惕时,裁判可以示意假想敌逃跑,并根据逃跑的距离米数进行扣分。犬只必须有机会接近假想敌所在掩体的位置,可以有多个入口进入掩体内。假想敌必须绝对遵循裁判指示的路线,并平等对待每一条参赛犬只。假想敌的走路姿势应表现自然,对所有犬只不能有挑衅的行为,表现的态度尽可能地一致。假想敌可以根据犬只的行为和警惕性自行决定是否逃跑,可以尝试逃跑三次,不包括从掩体逃跑。如果犬只在假想敌第三次逃跑结束后不再对其紧密监视,裁判可以在项目结束的鸣笛前要求假想敌再次逃跑,并根据实际情况扣分。假想敌不能过于专注在某一个障碍物上。在逃跑前,他可以越过某一个障碍物最多不超过3次。当假想敌越过障碍物第二次时,裁判应提醒假想敌他还有一次机会去越过障碍。假想敌不能借助同一障碍物逃跑两次。这个项目是证明犬只有能力将尝试逃跑的假想敌进行押解,假想敌应像囚徒试图逃跑那样进行行动。在演示犬进行演示时,裁判在这时向假想敌说明在项目中应表现的态度和行为,在情绪和行为之间如何平衡,并明确路线。假想敌在逃跑的过程中禁止使用跳跃协助逃跑行为。障碍物可以在逃跑过程中作为让犬只分心的障碍物,但不能在2次以上的逃跑中使用。在逃跑结束时,不可以给出停留的口令。押解开始后,仅允许使用“放口”口令,在犬只停止扑咬后的任何其他额外的口令均会导致失去所有项目分数。放口口令可以连结犬只的名字,如果犬只名字和放口之间有停顿,将被视为2次口令。
项目说明
请参阅“所有项目的通用说明”。在助理裁判的指引下,参赛犬只与指导手离开赛场。当假想敌隐藏好之后,裁判给出返回信号。如果犬只保持警惕并发现假想敌,指导手在裁判的确认后可以让假想敌从掩体中走出来。假想敌走出掩体时应保持步伐稳定。犬只示警后,指导手在裁判的授权下走到距离掩体3米处的标记位置,让假想敌从掩体中走出来。如果指导手跑向掩体,将会扣态度分。当犬只注视着假想敌时,即被认为处在监视状态。如果犬只不在监视状态,裁判可以允许假想敌尝试逃跑。如果场上仅有裁判一人,裁判应当靠近假想敌隐藏的区域,以便能够有更好的视野。如果犬只没能在规定时间内发现假想敌,该项目将被取消。如果犬只发现了假想敌但未进行吠叫示警,在搜索部分扣5分,然后指导手在裁判的信号后回到掩体位置继续项目。犬只如果在发现假想敌后未进行吠叫示警,随后继续绕过掩体并继续搜索,在这种情况下裁判不会给出假想敌离开掩体的指示。犬只可以在规定的时间内进行搜索。如果犬只在规定的搜索时间结束前回到指导手3米范围内,指导手可以给出一次额外的搜索口令,但会被扣分。如果犬只在发现假想敌后直接扑咬,无论是否进行过吠叫示警,均会被扣5分。如果犬只在未发现假想敌,或未看到假想敌的情况下吠叫示警,扣5分。如果场地没有被围栏整体围住,当犬只离开场地时,指导手必须将其叫回场内,并不会被罚分且计时暂停。在裁判信号后,指导手在原地将犬只叫回场内,犬只回到场内后继续计时。如果犬只回到指导手3米范围内,指导手可以再次给出搜索口令,且不会被扣分。如果场地整体被围栏围住,犬只越过围栏,这种情况下计时不会停止。裁判会给出信号让指导手在原地将犬只叫回场内。如果犬只未在指导手的帮助下继续搜索,不会被扣分。如果给出额外的口令会扣10分。当假想敌被发现时,犬只在未吠叫示警的情况下咬住假想超过15秒将扣10分,并额外扣5分态度分,裁判将给出信号让指导手来到3米线位置,额外的放口口令会被扣分。如果犬只在攻击假想敌30秒后依然未放口,将被判失格。如果犬只停止攻击,指导手可以让假想敌走出掩体。在项目进行时,假想敌在尝试逃跑时应避开犬只尽可能地跑远。假想敌在被扑咬到大约3秒时,裁判鸣笛,指导手给出口令后停止逃跑。假想敌在被扑咬到后的逃跑移动距离,不扣分。如果犬只在指导手口令前放开,假想敌会继续逃跑。除非得到裁判的信号,在放口的口令之后假想敌不再逃跑。在整个押解过程中,指导手必须与假想敌保持至少3米距离,并始终保持在假想敌身侧或身后,不能在假想敌身前。如果假想敌逃离超过30米距离,仅能获得在搜索部分得到的分数。裁判通过数次鸣笛表明项目结束。指导手给出“停”的口令,假想敌停下行走。当押送结束时,犬只应在原地监视。指导手将犬只唤回至随行位置,然后将假想敌移送负责的工作人员。
扣分说明

6.护主 30分
项目叙述
时限:10秒
分数构成:20分攻击,10分保护和唤回
该项目基于以下9项规则:1.指导手和假想敌在最初见面时有一次接触(握手),可以有简单的会话,也可以没有。指导手应使用正常的语气和语调进行回复。裁判可以对假想敌的行为作出要求,例如在整个项目中保持沉默。2.比赛难度将随着比赛等级逐步提升。3.在任何一个级别的比赛中,假想敌应使用双手制造冲突,攻击性行为应该显而易见。4.在假想敌攻击指导手之后,双方在原地保持2秒不动。如果犬只在这2秒钟内进行扑咬,项目继续进行;如果犬只未在2秒内进行扑咬,裁判将终止项目。5.犬只仅可以在其主人受到攻击时做出反应。6.对指导手做出攻击性行为的假想敌,必须在之前互相握手。7.在演示犬进行演示时,将对所有参赛者说明项目的流程。指导手的代表可以在演示之后要求补充说明。8.干扰物仅可以让假想敌进行自我保护或阻止犬只保护其主人,不可以用来挑衅指导手和犬只。9.假想敌不能主动故意将犬只引开,必须遵循演示犬演示的原定路线。裁判可以决定犬只是否可以被假想敌引导离开10米的距离。指导手可以让犬只保持在身体左侧或右侧,行进中犬只不能在指导手两腿之间。该项目必须有握手环节,交谈不是必需的。裁判可以要求指导手在给出口令后不许讲话。如果裁判没有给出特殊要求,指导手仅可以在最初的问候中正常回应,在其他时候均不能讲话。假想敌在握手前不可以有挑衅行为。在使用干扰假想敌时,两名假想敌均可以握手。在握手后,作为干扰的不会攻击的假想敌应距离指导手至少3米,并且不能有挑衅行为。项目中犬只在扑咬后不放口,最多扣掉10分,允许延迟1秒放口,该项目最高可以获得20分,其余的分数可积累获得。如果犬只未在假想敌攻击指导手后2秒内对其进行扑咬,失去所有分数。犬只若是因干扰物或非正常站位,在2秒内未攻击到假想敌是允许的。假想敌攻击指导手并保持2秒钟的时间,在这段时间内犬只必须进行扑咬。在护主项目中,指导手应距离假想敌3米以上,直到给出放口口令后犬只回到随行位置。攻击错误的假想敌会失去全部分数。
项目说明
请参阅“所有项目的通用说明”。
项目的进展,以举例进行说明:
• 在假想敌和指导手见面后有简单的对话,随后发生冲突• 在对话结束后,假想敌果断地走开,随后转身攻击指导手• 同上,但在过程中假想敌尝试欺骗犬只,降低其警惕性。• 假想敌对其他人展示出攻击性,诱导犬只做出错误的反应。• 第三方假装与指导手发生冲突。• 假想敌向指导手表现出攻击性,如同日常生活中常见的场景• 裁判鸣笛示意可以给出放口口令,犬只必须紧密监视假想敌5秒,当裁判指示项目结束后,指导手唤回犬只。• 犬只监视超过5秒,在裁判给出鸣笛信号,但在指导手给出唤回口令前,犬只返回到指导手位置,将扣2分。
扣分说明

7.看守物品 3级:30分
该项目开始前,场地上以同一圆心,画出一个半径5米的环形区域和一个半径2米的环形区域。物品在5米环外3米的位置放置,所有参赛者使用相同位置。参赛的指导手拿起物品放在5米环的线上。直到听到裁判鸣笛,指导手将物品按照裁判要求放在内环中。指导手给犬只下达看守物品的命令,随后走进掩体,在此期间不可以回头。被看守的物品将被放置于2个同心圆的圆心。裁判可以决定使用1名或2名假想敌。在第一名假想敌工作时,第二名假想敌应距离第一名假想敌至少10米。该项目有3次偷取物品的机会,根据犬只出现的错误,3次尝试的扣分相同并累计。如果假想敌在3次机会中成功偷取物品1次,该项目失去所有分数。对于每一名参赛选手,在3次尝试偷取物品的机会中,假想敌仅可以使用转移犬只注意力的干扰物。不可以使用类似于盾牌的物品阻止犬只扑咬。不可以使用让犬只无法穿过的干扰物。使用的干扰物可以与比赛中其他项目使用的干扰物不同。假想敌不可以在5米环内扔出或放下干扰物。如果干扰物和看守物品容易混淆时,使用第三件物品进行替换。禁止使用可能对犬只造成危险的看守物品。在不使用干扰物时,扑咬距离的认定方式,是物品和假想敌身体距离物品最近的位置的距离。在使用干扰物时,计算看守物品和干扰物之间的距离。当假想敌身体的任意部位进入到5米环或2米环时,假想敌必须继续前进并靠近看守物品。当假想敌进入到2米环时,有最多30秒的时间去进行1次偷取尝试。当假想敌处在5米环内,未进入到2米环内被犬只扑咬时,可以闪身躲避或使用干扰物阻挡。即便如此,假想敌不可以借助干扰物的帮助躲避犬只。当干扰物进入到2米环范围内时,视为假想敌进入2米环。场地内应仅有1件看守物品。假想敌在2米环外应保持自然的表现和态度,当假想敌在2米环外时犬只发起攻击,假想敌可以正当防卫。当假想敌进入到2米环内时,必须尝试偷取物品。对于扑咬的定义,与紧急唤回或搜索项目相同。场地内所画的圆环仅作为参考,当被看守物品被带离初始位置时,计算扑咬距离应以被看守物品的实际位置为准,以物品所在位置为圆心重新定义两个圆环的区域。举例来说,如果犬只在距离物品4米位置进行扑咬,并被带离至6米的位置,扣分叠加:
• 犬只在4米位置扑咬,-5
• 犬只被向外带离2米,-2,总计-7
在项目结束,指导手前往看守物品时犬只跑向指导手,将被扣态度分。如果犬只在裁判鸣笛前离开看守物品,每离开1米扣1分,离开超过10米项目0分。
项目说明
请参阅“所有项目的通用说明”。指导手将看守物品放置在两米环圆心处并命令犬只看守,随后离开前往藏身地点。假想敌进入五米环时应保持自然的表现和态度,不能表现出攻击性或试图吸引犬只注意。当假想敌进入到两米环后犬只依然未攻击,假想敌有30秒的时间可以偷取物品,假想敌应想尽办法,可以使用恐吓,威胁及躲避犬只的方式,尝试让犬只放弃看守物品。如果犬只在假想敌能碰触到物品前扑咬阻止其偷走物品,假想敌必须等待两秒后自然放手并离开物品。如果在假想敌离开时犬只仍未放口,假想敌应尝试将犬只拖走。如果犬只在假想敌拿到物品后扑咬,则假想敌应立即放下物品,然后执行上述流程。如果犬只咬住看守物品,或用至少一只脚放在物品上,但在假想敌接近时未扑咬,假想敌应在犬只与物品保持接触时将物品拖拽出两米圆环。如果假想敌在这种情况下成功将物品拖出两米距离,裁判可以停止该项目并认定看守失败。在确定扑咬距离时,裁判应考虑假想敌的位置和姿势。在确定犬只被拖离看守物品的距离时,裁判应考虑犬只的位置和姿势。犬只离开2米环或5米环的判断标准为犬只四只脚均离开圆环。当裁判认定犬只看守物品有效但表现不够不完美时,裁判有权扣态度分。如果指导手在离开犬只看守物品,前往藏身地点的过程中回头看犬只,则项目零分。如果犬只啃咬看守物品,扣态度分。如果犬只将看守物品撕咬破坏,则项目零分。
扣分说明

得分表
为了训练过程能够循序渐进,国际实战犬赛共分三个难度,难度逐级增加,每个级别的最高得分分别为:
• 国际实战犬赛1级总分:200分
• 国际实战犬赛2级总分:300分
• 国际实战犬赛3级总分:400分

评级

如果获得分数持平,将根据以下标准对犬只进行排名:• 总分平分时,攻击项目中扣除态度分后,得分更高者排名靠前。• 攻击项目仍然平分时,服从项目中扣除态度分后,得分更高者排名靠前。• 服从项目仍然平分时,跳跃项目中扣除态度分后,得分更高者排名靠前。
最终说明
FCI工作犬委员会于2001年3月17日在斯洛文尼亚新戈里察举行的会议上讨论并通过了现行的国际实战犬赛比赛国际规则(FCI-MR)。
FCI成员国家犬业协会可在本国开展该项目。如果对该赛制的规则理解存在疑问,以法语版本为准。FCI总务委员会于2002年5月通过了本赛制规则。FCI总务委员会于2019年11月批准了跳跃项目障碍设计图中的变更。2023年8月20日,FCI总务委员会于日内瓦通过了最新一次赛制变更。
FCI工作犬委员会
主席:Eberhard Strasser
斯洛文尼亚,新戈里察
CKUWDC为平阳县中爱联合宠物文化发展中心所设立的于国内开展各项专业工作犬文化发展及特色活动推广的品牌注册商标。